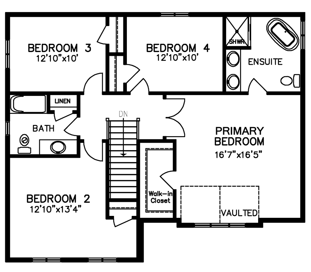
THE CYPRESS 2383 Sq Ft
4 Bed | 2.5 Bath
With 2383 sq. ft., two car garage, vaulted great room, primary bedroom with ensuite.
4 Bed | 2.5 Bath
With 2383 sq. ft., two car garage, vaulted great room, primary bedroom with ensuite.